Close Menu
    Facebook X (Twitter) Instagram
    CafeL.xyz
    • An cư
    • Tư vấn
    • Tài chính – Vay
    • Bất động sản
      • Thị trường
        • Căn hộ
        • Chung cư
        • Condotel
        • Nhà cho thuê
        • Nhà ở xã hội
        • Văn phòng cho thuê
      • Đánh giá & Phân tích
        • Báo cáo
        • Đánh giá khu vực
        • Định giá BĐS
        • Dự báo
        • Góc chuyên gia
        • Nhận định
    • Góc đầu tư
      • Phân tích đầu tư
      • Tâm lý khách hàng
      • Xu hướng
    • Pháp lý BĐS
      • Chính sách BĐS
      • Luật đất đai
      • Luật kinh doanh BĐS
      • Luật Nhà ở
      • Sổ hồng – Sổ đỏ
      • Tách thửa
    LIỆN HỆ
    CafeL.xyz
    Home»Tin nổi bật»Nhà biệt thự : Các bước cải tạo kiến trúc theo phong thuỷ
    Tin nổi bật

    Nhà biệt thự : Các bước cải tạo kiến trúc theo phong thuỷ

    By TRƯƠNG MINH07/06/2023Thời gian đọc khoảng 6 phút
    Chia sẽ với : Facebook Twitter Pinterest LinkedIn Tumblr Email WhatsApp
    Theo dõi Cafel trên Google News
    Google News
    Facebook Twitter LinkedIn Pinterest Email

    Ngày nay, việc các chủ nhân sở hữu nhà đất có nhu cầu cải tạo lại thiết kế ngôi nhà, đảm bảo tối ưu công năng và tốt về phong thủy ngày càng phổ biến.

    Trong số này, kiến trúc sư, chuyên gia phong thủy Hoàng Trà, Phó Viện trưởng Viện Lý học phương Đông chia sẻ kinh nghiệm cải tạo thiết kế kiến trúc, phong thủy cho biệt thự theo tuổi nam gia chủ sinh năm 1957 Tây Tứ Trạch.

    Hiện nay, có nhiều dự án bàn giao biệt thự đã hoàn thiện bên ngoài, đa số các gia chủ về sẽ sửa lại theo mục đích sử dụng phù hợp với hoàn cảnh gia đình. Hơn nữa, là sửa cho hợp phong thủy. Dưới đây là quá trình thiết kế cải tạo biệt thự trong dự án Green Bay (quận Nam Từ Liêm, Hà Nội).

    Bước 1: Đến hiện trạng, đo hướng nhà và kiểm tra địa lý phong thủy tại thực địa, được hướng nhà Tây Bắc 330 độ, nhà có sơn Tỵ hướng Hợi.

    Đằng sau và hai bên đều có nhà. Trước mặt có hồ lớn của cả khu. Xét về địa thế và phong thủy là một ngôi nhà đẹp theo 8 hướng, 24 sơn, 72 long.

    Bước 2: Kiểm tra kiến trúc hiện trạng, phân tích kiến trúc và sự tốt xấu theo phong thủy.

    Với công năng kiến trúc hiện tại, cửa chính đi vào nhà có 2 cánh, nằm bên Bạch Hổ, theo 8 hướng thì nằm trong phương vị Tây Bắc là Sinh Khí với chủ nhà, xét theo 24 sơn thì nhà nằm trong sơn phúc đức và cửa chính nằm trong Sơn Vượng Tài. Còn cửa 4 cánh từ phòng khách mở ra hiên 3/4 nằm ở phương vị Bắc là cung Họa hại theo Bát Trạch, lại thuộc sơn Ôn Hoàng trong 24 sơn. Xét theo 72 long thì cửa hai cánh bên Bạch Hổ vẫn vượng hơn cửa 4 cánh. Như vậy, với phong thủy của gia chủ ở nhà này, cửa vào nhà bên Bạch Hổ chắc chắn tốt hơn bên Thanh Long.

    Từ phong thủy của biệt thự này, đã chứng minh, không cứ phải cửa vào nhà bên Thanh Long là tốt hơn bên Bạch Hổ.

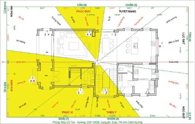
    CafeL.xyz
    Hình 1

    Từ hình 1, cửa chính đi vào nhà có một khoảng tiền phòng, rồi đến không gian để tủ giày, rồi vào nhà vệ sinh. Vệ sinh đặt ngay gần mặt tiền thông với cửa chính và cửa không gian để tủ giày, trở thành có 3 cửa thông nhau. Về phong thủy là không đẹp, kiến trúc này cũng làm cho không gian bị vụn. Ngoài ra, toàn bộ người nhà và khách khi đi vệ sinh phải đi vòng ra sảnh, không gian sảnh lại nhỏ hẹp nên khá bất cập.

    Nhìn tổng thể tầng 1, các không gian phòng khách, phòng ăn, phòng bếp rộng rãi không vướng vấn đề gì, nhưng không gian bếp rộng hơn không gian đặt bàn ăn nên chưa cân đối. Nhà có diện tích rất rộng, nhưng phòng tiếp khách lại không riêng tư, toàn bộ người ra vào ngôi nhà đều đi qua giữa bộ bàn ghế khách và kệ ti vi. Ngoài ra, đằng sau vị trí đặt bếp là cửa sổ lớn nên bị thông khí, bếp không có thế tựa, không tốt theo phong thủy.

    Ở tầng 1 cầu thang hiện đang đi lên theo chiều ngược kim đồng hồ, nhiều người cho rằng như vậy không phải là tốt. Tuy nhiên, sự tốt xấu của cầu thang không do chiều thuận hay nghịch chiều kim đồng hồ, mà quan trọng ở những bậc đầu tiên và và dẫn khí lên tầng 2.

    Với thiết kế hiện trạng, nhà không có cửa hậu hay cửa hông để đi vào khu bếp, mọi người phải đi qua phòng khách, phòng ăn, khá bất tiện trong việc sinh hoạt và không hợp lý khi cần thoát hiểm.

    Ngoài 2 bước quen thuộc trên, kiến trúc sư Hoàng Trà đề xuất thêm bước thứ 3.

    Bước 3: Xem phong thủy và đưa ra phương án thiết kế kiến trúc mới.

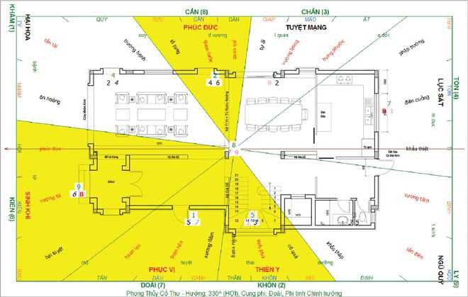
    Vị trí sảnh, cửa chính và khu tiền phòng đã rất tốt theo phong thủy, nên được giữ nguyên và tạo một tiền phòng rộng là nơi đón khách, để tủ để giày, mũ bảo hiểm, ô dù… (xem hình 2)

    CafeL.xyz
    Hình 2

    Từ không gian tiền phòng, bên trái là không gian phòng khách rộng rãi và riêng tư, người nhà đi về không ảnh hưởng khi đang tiếp khách. Phòng khách được nới hết không gian hiên ở mặt tiền, tạo ra tầm nhìn gần cảnh quan bên ngoài hơn.

    Giày dép của chủ và khách đều để ở tiền phòng, không bị bụi bẩn ra khắp nhà. Với diện tích nhà rộng, có 1 tầng hầm, nên bổ xung thang máy cạnh thang bộ. Đi qua tiền phòng là tiếp xúc ngay với khu vực thang bộ và thang máy, tiện cho việc di chuyển lên các tầng. Cầu thang bộ cũng được sửa lại với kích thước rộng hơn, là 108 cm, là kích thước đẹp theo thước Lỗ Ban, lại được thay đổi để thuận theo chiều kim đồng hồ để giải tỏa những băn khoăn về hướng của cầu thang.

    Từ khu vực sảnh thang, vào phòng ăn hay vào bếp hay khu vệ sinh sẽ thuận tiện và không bị chồng chéo công năng. Cả không gian tầng 1 chỉ cần một phòng vệ sinh chung ở cuối nhà. Người từ phòng khách, phòng ăn, hay khu bếp có đi vệ sinh cũng không bất tiện.

    Không gian giữa bếp và phòng vệ sinh cũng được coi là sảnh sau, có cửa mở ra sân sau, khi đi mua sắm đồ về có thể đi lối này. Khu sân sau dùng dàn sắt, che mái kính cường lực che mưa, tạo thêm một khoảng sân gia công, tiện cho việc sử dụng khi nhà có công việc.

    Khu bếp nấu được ngăn riêng thành 1 phòng và có hệ thống xử lý để không bị ảnh hưởng bởi mùi khi chế biến. Phòng ăn cũng được thiết kế lại vuông vắn, rộng rãi hơn phòng bếp. Giữa phòng khách và phòng ăn được ngăn bởi kệ tivi là kệ rượu và trang trí.

    Còn phòng cho người giúp việc được chuyển xuống tầng hầm, đảm bảo diện tích rộng rãi và không làm ảnh hưởng không gian kiến trúc tầng 1.

    Tổng hợp

    Nguồn tham khảo TẠI ĐÂY

    Bình luận

    biệt thự phong thủy phong thủy nhà ở

    BÀI VIẾT LIÊN QUAN

    Lãi suất vay mua nhà tăng ngắn hạn, bất động sản còn là kênh đầu tư đáng chú ý năm 2026

    23/03/2026

    Cơ hội mở ra, phân khúc nào dẫn dắt thị trường bất động sản 2026?

    14/03/2026

    Thị trường bất động sản : Giảm giá nhà không chỉ là nguồn cung

    09/03/2026

    GÓC CHUYÊN GIA BĐS

    Giá nhà ở thương mại “phù hợp” : Phù hợp với ai?

    09/03/2026

    Nhà thương mại giá phù hợp sẽ vừa túi tiền những người có thu nhập…

    Rất khó xảy ra chuyện bất động sản giảm đột ngột trong năm 2026 ?

    23/02/2026

    Tài chính bất động sản 2026 : Lãi suất tăng có tác động tiêu cực đến thị trường ?

    13/01/2026
    GÓC MÔI GIỚI BĐS

    Công nghệ : “bạn hay thù” của Môi giới địa ốc?

    20/02/2026

    Minh bạch hóa dữ liệu và số hóa giao dịch đang tái định hình thị trường bất động sản, kéo theo sự thay đổi sâu sắc của nghề môi giới…

    VARS xây dựng Bộ Tiêu chuẩn hành nghề môi giới bất động sản

    14/11/2025

    Khánh Hoà : Môi giới đăng bán bất động sản trên mạng xã hội phải ghi số chứng chỉ

    26/07/2025
    HỎI - ĐÁP

    Tại sao phải nộp thuế thu nhập cá nhân dù cho/tặng con cháu trong nhà ?

    14/03/2026

    Khi tặng cho quyền sử dụng đất cho con và cháu, nhiều người thắc mắc…

    Làm sổ đỏ đất nông nghiệp, người dân có phải nộp hồ sơ lên tỉnh?

    27/02/2026

    Sở hữu nhiều nhà, đất có bị coi là đầu cơ?

    08/02/2026
    BẤT ĐỘNG SẢN
    • Đất nền – Thổ cư
    • Đất công nghiệp
    • Đất nông nghiệp
    BĐS NỔI BẬC
    • Tp. HCM
    • Tp. Hà Nội
    • Tp. Đà Nẵng
    • Tp. Hải Phòng
    • Tp. Huế
    • Tp. Cần Thơ
    • Đồng Nai
    • Tây Ninh
    • Đồng Tháp
    TIỆN ÍCH
    • Phong thủy
    • Bảng giá đất 2026
    • Lệ phí trước bạ toàn quốc
    • Định giá nhà đất
    • Môi giới BĐS
    • Thuật ngữ BĐS
    • Tính lãi vay mua nhà
    • Khóa học BĐS
    • Thị trường BĐS là gì?
    About
    About

    Blog CafeL.xyz : Tin tức và Tư vấn, Đầu tư, Môi giới,... bất động sản được vận hành bởi MOPISystem Group.

  • Chịu trách nhiệm nội dung : TẠI ĐÂY
  • Email : xyzgroup.22@gmail.com

    Hãy kết nối với CafeL qua :

  • Facebook X (Twitter) YouTube RSS
    QUY ĐỊNH CHUNG
    • Quy định hoạt động
    • Giải quyết khiếu nại
    • Chính sách bảo mật
    • Liên hệ quảng cáo
    KẾT NỐI & BẢO MẬT
    BẤT ĐỘNG SẢN
    BLOG ĐẦU TƯ TÀI SẢN
    BLOG KIẾN THỨC CUỘC SỐNG
    BLOG MÓN CHAY
    DMCA.com Protection Status
    Copyright © 2022. Designed by MOPISystem.
    • Home
    • Founder
    • Thiện nguyện
    • Liên hệ
    • Sitemap

    Type above and press Enter to search. Press Esc to cancel.